Tilbake

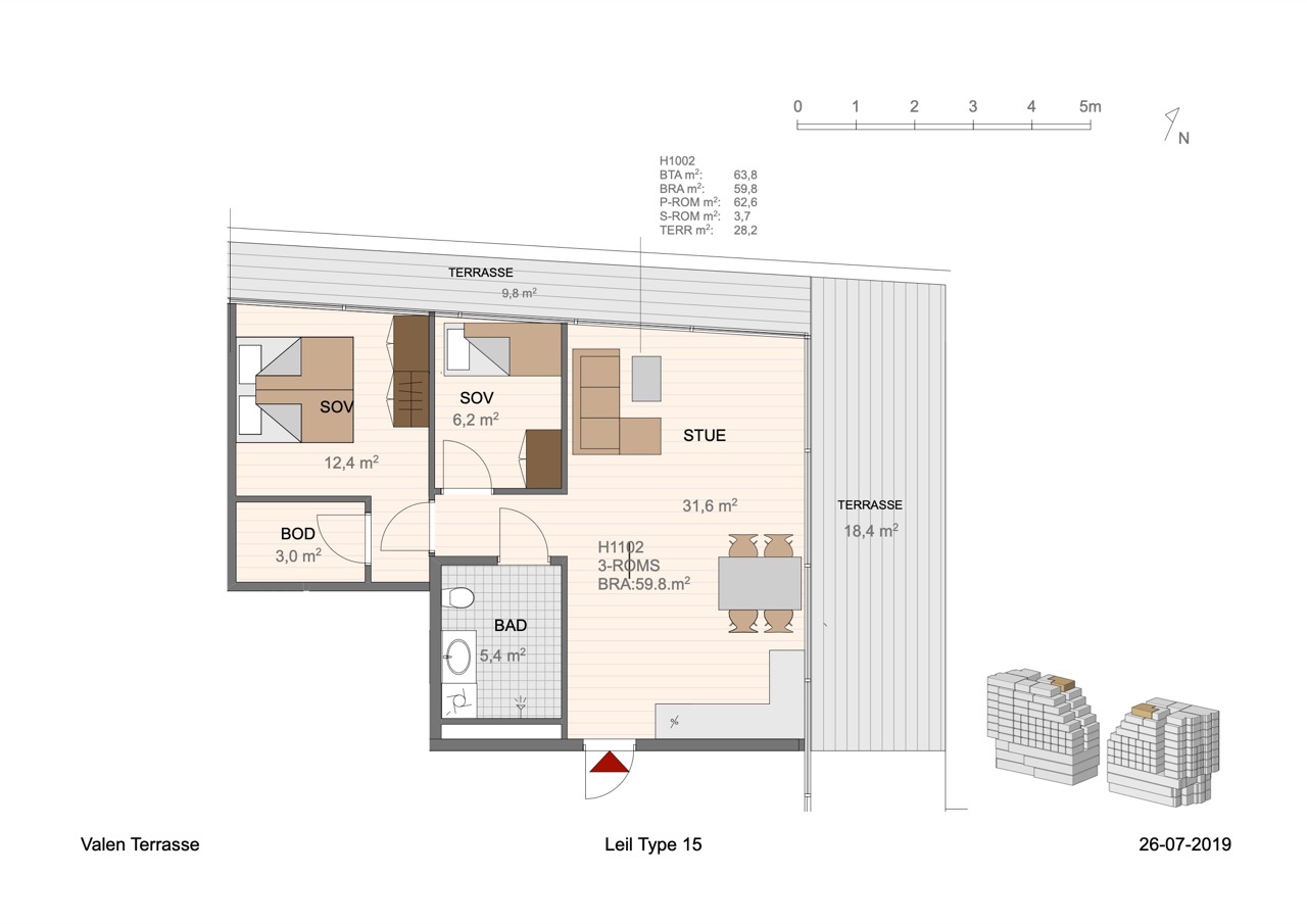
Leilighet 1102

Status: Reservert
Leilighetstype: 15
Antall rom: 3
Etasje: 11
Bruksareal (BRA): 59.8
Bruttoareal (BTA): 63.8
Primærrom (P-rom): 62.6
Sekundærrom (S-rom): 3.7
Balkong : 28.2
Pris: 3 460 000,-

Boligvelger

Indikerer plassering av valgt leilighet

Vennligst kontakt meg.

Jeg er interessert i denne leiligheten.